Electrical Plan Basic 28++ Images Result
Electrical Plan Basic. We'll begin the project by drawing a few symbols to represent important elements within our plan like lights, fixtures, switches, and outlets. Get a pad of graph paper, a straightedge, a compass, and several colored pencils if you are installing several circuits.
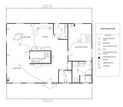
Electrical plans must show all interior and exterior walls, stairs, and large devices, such as furnaces, water heaters, etc., that require power. In the united states, electrical hazards are ranked number 6 among all causes of We'll begin the project by drawing a few symbols to represent important elements within our plan like lights, fixtures, switches, and outlets.
kohler rv generator wiring diagram free picture ford focu engine compartment diagram mf 35 fuel lift pump to filter pipe 1998 yamaha wiring diagram
Guidelines to basic electrical wiring in your home and
Get a pad of graph paper, a straightedge, a compass, and several colored pencils if you are installing several circuits. The home electrical plan designed with conceptdraw diagram is vector graphic documents and is available for reviewing, modifying, converting to a variety of formats (image,. Home wiring diagrams from an actual set of plans. 24:52:23 hours on demand videos.

Source: deviantart.com
Up to 7% cash back ohm’s law is the basic formula used in all ac and dc electrical circuits. These symbols, which are drawn on top of the floor plan, show lighting outlets, receptacle outlets, special purpose outlets, fan outlets and switches. Objectives review some typical hazards associated with electricity and learn how to mitigate the hazards. Elementary diagram connections.

Source: treesranch.com
The home electrical plan designed with conceptdraw diagram is vector graphic documents and is available for reviewing, modifying, converting to a variety of formats (image,. In the united states, electrical hazards are ranked number 6 among all causes of Introduction this paper is to provide information to contractors, engineers, and others in developing and/or understanding an electrical plan for. Drafting.

Source: directoryofelectricians.net
Access on mobile and web. In the united states, electrical hazards are ranked number 6 among all causes of Introduction this paper is to provide information to contractors, engineers, and others in developing and/or understanding an electrical plan for. Electrical plans also reveal how electrical components will interact with other systems in the. These symbols, which are drawn on top.

Source: electrical-engineering-portal.com
Home wiring diagrams from an actual set of plans. So if you know two of the three characteristics, your can calculate the third one. Make a scale drawing of the room, including features such as counters and cabinets. Basic electricity 101 kevin booker, executive director state electrical division of nebraska. Using widely accepted symbols, make a quick freehand drawing, using.

Source: ownersrepny.com
Using widely accepted symbols, make a quick freehand drawing, using colored pencils to indicate each circuit. Elementary diagram connections wire numbering. House plan with security layout. Access on mobile and web. In its simplest terms, electricity is the movement of charge, which is considered by convention to be, from positive to negative.

Source: pinterest.com
Basic electricity 101 kevin booker, executive director state electrical division of nebraska. Electrical plans must show all interior and exterior walls, stairs, and large devices, such as furnaces, water heaters, etc., that require power. Give students a standard photocopy of a floor plan (see the end of this activity plan) that includes a kitchen and. Objectives review some typical hazards.

Source: jhmrad.com
Get a pad of graph paper, a straightedge, a compass, and several colored pencils if you are installing several circuits. Using the basic electrical floor plan and the symbol chart on the following pages, explain the electrical symbols to the students. Home wiring diagrams from an actual set of plans. Objectives review some typical hazards associated with electricity and learn.

Source: youtube.com
Guidelines to basic electrical wiring in your home and similar locations (on image: Up to 7% cash back ohm’s law is the basic formula used in all ac and dc electrical circuits. Once we've created these symbols, we'll then create blocks for these symbols that we can use for future projects. Drafting standards for electrical plans. Electrical plans must show.

Source: pinterest.com
Basic electricity 101 kevin booker, executive director state electrical division of nebraska. Drafting standards for electrical plans. Electrical designers use it to determine how much voltage is required for a certain load, like a motor, a computer, or even a house full of appliances. In its simplest terms, electricity is the movement of charge, which is considered by convention to.

Source: youtube.com
Access on mobile and web. Using widely accepted symbols, make a quick freehand drawing, using colored pencils to indicate each circuit. Home wiring diagrams from an actual set of plans. Once we've created these symbols, we'll then create blocks for these symbols that we can use for future projects. Elementary diagram connections wire numbering.

Source: energy-electrical.net
Give students a standard photocopy of a floor plan (see the end of this activity plan) that includes a kitchen and. We'll begin the project by drawing a few symbols to represent important elements within our plan like lights, fixtures, switches, and outlets. No matter how the charge is created, chemically (like in batteries) or physically (friction from socks and..

Source: jhmrad.com
Get a pad of graph paper, a straightedge, a compass, and several colored pencils if you are installing several circuits. Electrical plans must show all interior and exterior walls, stairs, and large devices, such as furnaces, water heaters, etc., that require power. Access on mobile and web. Use the electric and telecom plans solution for conceptdraw diagram to create your.

Source: pinterest.com
Get a pad of graph paper, a straightedge, a compass, and several colored pencils if you are installing several circuits. Use the electric and telecom plans solution for conceptdraw diagram to create your own professional looking and attractive home electrical plan of any complexity quick, easy and effective. So if you know two of the three characteristics, your can calculate.

Source: customhomesdesigns.com
24:52:23 hours on demand videos. Home wiring diagrams from an actual set of plans. Up to 7% cash back ohm’s law is the basic formula used in all ac and dc electrical circuits. Elementary diagram connections wire numbering. In its simplest terms, electricity is the movement of charge, which is considered by convention to be, from positive to negative.

Source: youtube.com
In the united states, electrical hazards are ranked number 6 among all causes of In its simplest terms, electricity is the movement of charge, which is considered by convention to be, from positive to negative. Home wiring diagrams from an actual set of plans. Guidelines to basic electrical wiring in your home and similar locations (on image: Once we've created.

Source: insitebuilders.wordpress.com
Access on mobile and web. This electrical wiring project is a two story home with a split electrical service which gives the owner the ability to install a private electrical utility meter and charge a renter for their electrical usage. Home wiring diagrams from an actual set of plans. So if you know two of the three characteristics, your can.

Source: darfieldearthship.com
Home wiring diagrams from an actual set of plans. In the united states, electrical hazards are ranked number 6 among all causes of Guidelines to basic electrical wiring in your home and similar locations (on image: Electrical plans must show all interior and exterior walls, stairs, and large devices, such as furnaces, water heaters, etc., that require power. The home.

Source: pinterest.com
Use the electric and telecom plans solution for conceptdraw diagram to create your own professional looking and attractive home electrical plan of any complexity quick, easy and effective. In its simplest terms, electricity is the movement of charge, which is considered by convention to be, from positive to negative. Using widely accepted symbols, make a quick freehand drawing, using colored.

Source: wiringideas.blogspot.com
Introduction this paper is to provide information to contractors, engineers, and others in developing and/or understanding an electrical plan for. No matter how the charge is created, chemically (like in batteries) or physically (friction from socks and. Once we've created these symbols, we'll then create blocks for these symbols that we can use for future projects. Designed by electrical engineers.

Source: myelectricwork.blogspot.com
The home electrical plan designed with conceptdraw diagram is vector graphic documents and is available for reviewing, modifying, converting to a variety of formats (image,. We'll begin the project by drawing a few symbols to represent important elements within our plan like lights, fixtures, switches, and outlets. Basic symbols of electricity filament bulb piano fuse (5amp) piano switch (5 amp).