Electrical Plan Reading 11++ Images Result
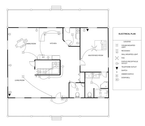
Electrical Plan Reading. Plot plan showing the location of the building on the property and all outside electrical wiring, including the service entrance. A roofing project, for example, will have symbols for items located on a roof such as hvac units or skylights, while an electrical plan will have symbols for outlets and conduits.
What is an electrical plan? Be indicated on interior design electrical plans. The electrical plan reading workbook.
furnace fan motor wiring 1975 corvette alternator wiring diagram hid edge wiring diagram free download schematic 1 channel amplifier wiring diagram
Electrical Drawing at GetDrawings Free download
You are welcome to work with others currently in the class, a ta or faculty member in the. Recognizing basic electrical schematic symbols 1. In short, an electrical plan describes the position of all the. Electrical plan reading assignment const 235 1.
Source: wiring121.blogspot.com
Floor plans showing the walls and partitions for each floor level. Best selling books to prepare electricians for the licensing exam. See search results for this author. It is a device that stores electrical energy and usually has two terminals, which can be connected to. Per trade requirement & 0.b.c., document indicating on site lgqatlo\ to be provided to interior.

Source: treesranch.com
Shows how a typical lighting and power layout would appear on a plan, and explains what to do to execute the plan. Basics 8 aov elementary & block diagram : That one can read or prepare an electrical plan for the building. 16.all areas where cabinetry is to have electrical to be finalized. Knowing the meanings of basic electrical symbols.

Source: pinterest.com
Familiarize with standardized electrical symbols. What is an electrical plan? The physical locations of all wiring and outlets are. 16.all areas where cabinetry is to have electrical to be finalized. Read schematics in the pattern that you would read the text.

Source: youtube.com
Electrical plan blueprint reading course description this course curriculum was designed to teach basic electrical blueprint reading.you will learn about the most common electrical symbols used today.the course also contains hands on project to complete such as drawing an electrical plan and reading an electrical plan from an actual construction blueprint. The physical locations of all wiring and outlets are..

Source: electrical-engineering-portal.com
A roofing project, for example, will have symbols for items located on a roof such as hvac units or skylights, while an electrical plan will have symbols for outlets and conduits. This plan is drawn to scale with the exception of the various electrical symbols, which must be enlarged to be readable. Designed by electrical engineers or pro electrical companies,.
Source: changecominon.blogspot.com
Shows how a typical lighting and power layout would appear on a plan, and explains what to do to execute the plan. Electrical plan blueprint reading course description this course curriculum was designed to teach basic electrical blueprint reading.you will learn about the most common electrical symbols used today.the course also contains hands on project to complete such as drawing.

Source: electrical-engineering-portal.com
(3) with a full understanding of the electrical plan, the contractor can better estimate the cost of a construction project. Find all the books, read about the author, and more. Electrical plan reading assignment const 235 1. See search results for this author. It is a type of technical drawing that delivers visual representation and describes circuits and electrical systems.
Source: cadbull.com
Basics 8 aov elementary & block diagram : Electrical, mechanical & storage room equipment/electricl as. (3) with a full understanding of the electrical plan, the contractor can better estimate the cost of a construction project. (2) as part of the construction plans, one is able to understand and take the electrical plan for building permit applications. Electrical blueprint reading revised.

Source: houseplanshelper.com
Print our fax order form. Basics 8 aov elementary & block diagram : It is a type of technical drawing that delivers visual representation and describes circuits and electrical systems. 16.all areas where cabinetry is to have electrical to be finalized. Create a new symbol for the electrical design plan, as long as it is added to the symbols list.

Source: pinterest.com
Best selling books to prepare electricians for the licensing exam. This is an individual assignment, so you need to turn in your own work. View electrical plan reading assignment.pdf from const 235 at brigham young university, idaho. Electrical plans electrical plans indicate various aspects of an electrical system including sockets, outlets, wiring, and in some cases heating ventilation, and air.

Source: buildersbook.com
(2) as part of the construction plans, one is able to understand and take the electrical plan for building permit applications. Electrical plan blueprint reading course description this course curriculum was designed to teach basic electrical blueprint reading.you will learn about the most common electrical symbols used today.the course also contains hands on project to complete such as drawing an.

Source: youtube.com
Shows how a typical lighting and power layout would appear on a plan, and explains what to do to execute the plan. 16.all areas where cabinetry is to have electrical to be finalized. Familiarize with standardized electrical symbols. Floor plans showing the walls and partitions for each floor level. Reading and understanding the infor.
Source: scribd.com
Electrical, mechanical & storage room equipment/electricl as. It is a type of technical drawing that delivers visual representation and describes circuits and electrical systems. Per trade requirement & 0.b.c., document indicating on site lgqatlo\ to be provided to interior design consultant. 16.all areas where cabinetry is to have electrical to be finalized. Understanding blueprints and correctly identifying areas to safely.

Source: makezine.com
This is an individual assignment, so you need to turn in your own work. View electrical plan reading assignment.pdf from const 235 at brigham young university, idaho. Understanding blueprints and correctly identifying areas to safely access and install or repair wiring are crucial skills for any electrical contractor. Floor plans showing the walls and partitions for each floor level. Electrical.

Source: youtube.com
Shows how a typical lighting and power layout would appear on a plan, and explains what to do to execute the plan. Create a new symbol for the electrical design plan, as long as it is added to the symbols list included with the plan. This is an individual assignment, so you need to turn in your own work. Print.

Source: srikayafoods.blogspot.com
Do you know how to read an electrical drawing? Create a new symbol for the electrical design plan, as long as it is added to the symbols list included with the plan. Reading and understanding the infor. What is an electrical plan? In short, an electrical plan describes the position of all the.

Source: youtube.com
Create a new symbol for the electrical design plan, as long as it is added to the symbols list included with the plan. It consists of electrical symbols and lines that showcase the engineer's electrical design to its clients. What is an electrical plan? Electrical plans electrical plans indicate various aspects of an electrical system including sockets, outlets, wiring, and.

Source: pinterest.com
In short, an electrical plan describes the position of all the. The electrical plan is sometimes called as electrical drawing or wiring diagram. This is an individual assignment, so you need to turn in your own work. This plan is drawn to scale with the exception of the various electrical symbols, which must be enlarged to be readable. Be indicated.

Source: craftsman-book.com
(2) as part of the construction plans, one is able to understand and take the electrical plan for building permit applications. Electrical plan reading assignment const 235 1. Best selling books to prepare electricians for the licensing exam. In short, an electrical plan describes the position of all the. View electrical plan reading assignment.pdf from const 235 at brigham young.

Source: getdrawings.com
Recognizing basic electrical schematic symbols 1. Electrical plan blueprint reading course description this course curriculum was designed to teach basic electrical blueprint reading.you will learn about the most common electrical symbols used today.the course also contains hands on project to complete such as drawing an electrical plan and reading an electrical plan from an actual construction blueprint. Electrical plans electrical.