Electrical Plan Residential 22+ Images Result
Electrical Plan Residential. Electrical checklist plan review checklist ☐ check that wiring methods used are appropriate for conditions and occupancy ☐ verify panelboards for proper over current protection ☐ check individual and multioutlet branch circuits for proper ratings verify conductors and over current protection for consideration of continuous and noncontinuous loads, multioutlet This electrical wiring project is a two story home with a split electrical service which gives the owner the ability to install a private electrical utility meter and charge a renter for their electrical usage.
Create a new symbol for the electrical design plan, as long as it is added to the symbols list included with the plan. Once millwork shop drawings are reviewed. Electrical permits are required for any electrical work.
love controller wiring diagram alpine cda 9856 wiring diagram infiniti g37 radio wiring diagram circuit diagram resistor
Electrical Floor Plans Of Residential Building Design DWG
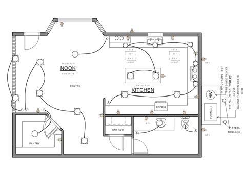
On small residential plans, the drawing is given directly to the electrical contractor to install the work according to accepted practices. District no job address city zip note: The samples you see on this page were created in conceptdraw diagram using the tools of electric and telecom plans solution from the building plans area. Home wiring diagrams from an actual set of plans.

Source: caltrac.ca
With all the shapes drawn and designed with editable feature, you can have. Electrical permits are required for any electrical work. These links will take you to the typical areas of a home where you will find the electrical codes and considerations needed when taking on a. Get a pad of graph paper, a straightedge, a compass, and several colored.

Source: cadbull.com
Obtain residential property report available as online service; 16.all areas where cabinetry is to have electrical to be finalized. District no job address city zip note: For other residential symbols, see our blueprint symbols page. House plan with security layout.

Source: chegg.com
The most commonly used electrical blueprint symbols including plug outlets, switches, lights and other special symbols such as door bells and smoke detectors are shown in the figure below. With all the shapes drawn and designed with editable feature, you can have. Obtain residential property report available as online service; It also includes what is known as a legend which.

Source: cadbull.com
Deciding which electricity rate plan to use can be a confusing experience. Be indicated on interior design electrical plans. Drawing a residential electrical plan. With all the shapes drawn and designed with editable feature, you can have. On small residential plans, the drawing is given directly to the electrical contractor to install the work according to accepted practices.

Source: pinterest.com
Complete electrical plan of a two level residence with all the details, electrical installations of light fixtures, outlets, calculations and electrical diagrams and panels for each level, plan in dwg autocad format. Home wiring diagrams from an actual set of plans. The vertical location of the devices will be consistent throughout the home. Using widely accepted symbols, make a quick.

Source: cadbull.com
District no job address city zip note: Deciding which electricity rate plan to use can be a confusing experience. This electrical wiring project is a two story home with a split electrical service which gives the owner the ability to install a private electrical utility meter and charge a renter for their electrical usage. An electrical plan is a plan.

Source: pinterest.com
Make a scale drawing of the room, including features such as counters and cabinets. Home wiring diagrams from an actual set of plans. Create a new symbol for the electrical design plan, as long as it is added to the symbols list included with the plan. Electrical plans shall be submitted for review for the following proposed types of construction:.

Source: cadbull.com
The vertical location of the devices will be consistent throughout the home. The interior designer prepares the power plan and then forwards it to the electrical engineer to detail the circuitry, wire sizes, panel boxes, and other electrical specifications. Use the electric and telecom plans. District no job address city zip note: Assembly halls, education, exhibition halls, multipurpose rooms, worship,.

Source: pinterest.com
The interior designer prepares the power plan and then forwards it to the electrical engineer to detail the circuitry, wire sizes, panel boxes, and other electrical specifications. The vertical location of the devices will be consistent throughout the home. The most commonly used electrical blueprint symbols including plug outlets, switches, lights and other special symbols such as door bells and.

Source: cadbull.com
These links will take you to the typical areas of a home where you will find the electrical codes and considerations needed when taking on a. Create a new symbol for the electrical design plan, as long as it is added to the symbols list included with the plan. Be indicated on interior design electrical plans. This entry was posted.

Source: pinterest.com
For other residential symbols, see our blueprint symbols page. An electrical plan is a plan view similar to the floor plan in that all the walls, doors, and windows are shown along with the electrical symbols that describe service to the house. With all the shapes drawn and designed with editable feature, you can have. Make a scale drawing of.
Source: cadbull.com
Ad templates, tools & symbols for any electric design, wiring & circuit diagrams. These links will take you to the typical areas of a home where you will find the electrical codes and considerations needed when taking on a. Obtain residential property report available as online service; A free customizable electrical plan template is provided to download and print. Electrical,.

Source: s677.photobucket.com
Assembly halls, education, exhibition halls, multipurpose rooms, worship, auditoriums, gymnasiums, restaurant, place of awaiting transportation or similar places and having. Electrical checklist plan review checklist ☐ check that wiring methods used are appropriate for conditions and occupancy ☐ verify panelboards for proper over current protection ☐ check individual and multioutlet branch circuits for proper ratings verify conductors and over current.

Source: pinterest.com
Electrical permits are required for any electrical work. Obtain residential property report available as online service; Per trade requirement & 0.b.c., document indicating on site lgqatlo\ to be provided to interior design consultant. Electrical plans shall be submitted for review for the following proposed types of construction: Electrical checklist plan review checklist ☐ check that wiring methods used are appropriate.

Source: pinterest.com
House plan with security layout. Use the electric and telecom plans. The most commonly used electrical blueprint symbols including plug outlets, switches, lights and other special symbols such as door bells and smoke detectors are shown in the figure below. Be indicated on interior design electrical plans. Electrical permits are required for any electrical work.

Source: apkpure.com
Any installation rated above 600 volts. Assembly halls, education, exhibition halls, multipurpose rooms, worship, auditoriums, gymnasiums, restaurant, place of awaiting transportation or similar places and having. Create a new symbol for the electrical design plan, as long as it is added to the symbols list included with the plan. There are several considerations that. Use the electric and telecom plans.

Source: cadbull.com
Create a new symbol for the electrical design plan, as long as it is added to the symbols list included with the plan. These links will take you to the typical areas of a home where you will find the electrical codes and considerations needed when taking on a. The interior designer prepares the power plan and then forwards it.

Source: planmarketplace.com
House plan with security layout. Electrical, mechanical & storage room equipment/electricl as. Any installation rated above 600 volts. Electrical plans shall be submitted for review for the following proposed types of construction: Theaters or motion picture theaters.
Source: cadbull.com
Electrical permits are required for any electrical work. Assembly halls, education, exhibition halls, multipurpose rooms, worship, auditoriums, gymnasiums, restaurant, place of awaiting transportation or similar places and having. On small residential plans, the drawing is given directly to the electrical contractor to install the work according to accepted practices. Complete electrical plan of a two level residence with all the.
Source: cadbull.com
Deciding which electricity rate plan to use can be a confusing experience. 16.all areas where cabinetry is to have electrical to be finalized. On small residential plans, the drawing is given directly to the electrical contractor to install the work according to accepted practices. Assembly halls, education, exhibition halls, multipurpose rooms, worship, auditoriums, gymnasiums, restaurant, place of awaiting transportation or.