Hvac Drawing Sample 32+ Images Result
Hvac Drawing Sample. Download free mep calculation excel sheets, autocad drawings, and training courses for hvac, firefighting, plumbing and electrical systems design. Boiler room mechanical schematic and layout specifications, including control and operation notes.
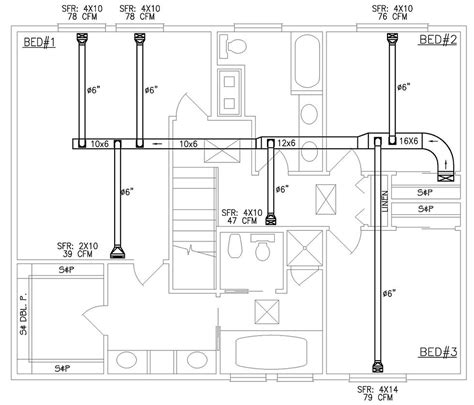
Sample set #4 design, drawings and specifications for residential hvac systems. The needed airflows include, for example, supply air, return air, and exhaust air. Scan the sketch using a scanner to make a bitmap, raster or pdf file.
1991 mustang gt radio wiring diagram electrical plan requirement kawasaki atv 220 wiring diagram 1960 westinghouse wall oven wiring diagram
HVAC drawings & calculations for Residential permit Ontario
See this page for budgeting hvac design fees and for budgeting indoor climate systems. I am the sole user of autocad + revit in the company (new to revit) and sometimes i think the drawings on revit do not look half as good/neat as my autocad drawings. Mechanical exhaust ventilation systems page 2 design, calculations, and operational guidelines july 5, 2000 iv. The hvac plans are quite important and are developed once the building's floor plans have been completed.

Source: pinterest.com
Scan the sketch using a scanner to make a bitmap, raster or pdf file. Drawings and specifications for an owner built infill project. Vector graphics (svg, emf, eps), bitmap graphics (png,. Conceptdraw diagram provides export of vector graphic multipage documents into multiple file formats: Make a sketch and note down any special instructions.

Source: forums.autodesk.com
Drawings and specifications for an owner built project sample. Mechanical hvac plans shall be filed with and approved by the department (as an hvac plan check) before any permit is issued for work listed below is started: Scan the sketch using a scanner to make a bitmap, raster or pdf file. Drawings and specifications for an owner built infill project..

Source: conceptdraw.com
If any of you guys could show me some benchmark drawings so i can see the. Upload the file using the short form below. See this page for budgeting hvac design fees and for budgeting indoor climate systems. Hvac piping temperature control/monitoring fire protection system medical steam piping duct symbols plumbing mechanical / plumbing symbols and abbreviations abbreviations drawing notations.

Source: andersonhvacdesign.ca
Download free mep calculation excel sheets, autocad drawings, and training courses for hvac, firefighting, plumbing and electrical systems design. Engineering drawing standards manual mechanical engineering branch goddard space flight center greenbelt, maryland august 1994 n a t i o n a l i a e r o n a u t i c s a n d s p a.

Source: getdrawings.com
Hvac (heating, ventilation, and air conditioning) plans refer to the drawings made by specialized engineers that include all the details needed to create, set up, and maintain the heating and cooling system in a building. The hvac plans are quite important and are developed once the building's floor plans have been completed. Ducts commonly also deliver ventilation air as part.

Source: zalaco.com
Conceptdraw diagram provides export of vector graphic multipage documents into multiple file formats: Hi guys, as the title say, if possible could you show me examples of your hvac drawings? Let us create a mechanical drawing or model for you. Autocad mechanical 2019 sample files. Los angeles county is using the 2002 edition of the los angeles county building code.

Source: getdrawings.com
Make a sketch and note down any special instructions. Upload the file using the short form below. The autocad hvac sample drawings are available to view in 3 different file formats. Boiler room mechanical schematic and layout specifications, including control and operation notes. Hi guys, as the title say, if possible could you show me examples of your hvac drawings?

Source: pinterest.com
Autocad mechanical 2019 sample files. This hvac floor plan sample shows the ventilation duct system layout. The autocad hvac sample drawings are available to view in 3 different file formats. Small hvac system design guide overview 1 overview this design guide focuses on packaged heating, ventilation and air conditioning (hvac) syst ems up to 10 tons per unit—the most common.

Source: jrwilsonengineering.ca
If any of you guys could show me some benchmark drawings so i can see the. Free hvac sample dwg files. Ducts commonly also deliver ventilation air as part of the supply air. Small hvac system design guide overview 1 overview this design guide focuses on packaged heating, ventilation and air conditioning (hvac) syst ems up to 10 tons per.

Source: conceptdraw.com
The needed airflows include, for example, supply air, return air, and exhaust air. Heating, ventilating, and air conditioning (hvac) default recent. These files includes air port, commercial building and elementary school. Los angeles county is using the 2002 edition of the los angeles county building code (lacbc). The.dwf files can be viewed with the autodesk design review program and is.

Source: getdrawings.com
This hvac floor plan sample shows the ventilation duct system layout. Heating, ventilating, and air conditioning (hvac) default recent. See this page for budgeting hvac design fees and for budgeting indoor climate systems. Hvac project drawings for commercial building. Small hvac system design guide overview 1 overview this design guide focuses on packaged heating, ventilation and air conditioning (hvac) syst.

Source: jrwilsonengineering.ca
Engineering drawing standards manual mechanical engineering branch goddard space flight center greenbelt, maryland august 1994 n a t i o n a l i a e r o n a u t i c s a n d s p a c e. Drawings and specifications for an owner built project sample. Ducts commonly also deliver ventilation air as part.

Source: jrwilsonengineering.ca
I am the sole user of autocad + revit in the company (new to revit) and sometimes i think the drawings on revit do not look half as good/neat as my autocad drawings. Download free mep calculation excel sheets, autocad drawings, and training courses for hvac, firefighting, plumbing and electrical systems design. Improved placement of views on types of drawings.
Source: getdrawings.com
Sample set #4 design, drawings and specifications for residential hvac systems. Ducts are used in heating, ventilation, and air conditioning (hvac) to deliver and remove air. Heating, ventilating, and air conditioning (hvac) default recent. Ducts commonly also deliver ventilation air as part of the supply air. And welfare by regulating the design, construction, quality of materials, use, occupancy, location and.

Source: getdrawings.com
Los angeles county is using the 2002 edition of the los angeles county building code (lacbc). This hvac floor plan sample shows the ventilation duct system layout. If any of you guys could show me some benchmark drawings so i can see the. Samples of heating, ventilation, air conditioning (hvac) plans are created using conceptdraw diagram diagramming and vector drawing.

Source: getdrawings.com
Heating, ventilating, and air conditioning (hvac) default recent. Autocad mechanical 2019 sample files. Boiler room mechanical schematic and layout specifications, including control and operation notes. Engineering drawing standards manual mechanical engineering branch goddard space flight center greenbelt, maryland august 1994 n a t i o n a l i a e r o n a u t i c s.

Source: engsw.com
Mechanical hvac plans shall be filed with and approved by the department (as an hvac plan check) before any permit is issued for work listed below is started: Drawings and specifications for an owner built project. See this page for budgeting hvac design fees and for budgeting indoor climate systems. Download free mep calculation excel sheets, autocad drawings, and training.

Source: conceptdraw.com
Make a sketch and note down any special instructions. Conceptdraw diagram provides export of vector graphic multipage documents into multiple file formats: New engineering order (eo) forms added. Mechanical hvac plans shall be filed with and approved by the department (as an hvac plan check) before any permit is issued for work listed below is started: Mechanical exhaust ventilation systems.

Source: hvacshopdrawing.com
Hvac piping temperature control/monitoring fire protection system medical steam piping duct symbols plumbing mechanical / plumbing symbols and abbreviations abbreviations drawing notations sections and details. Engineering drawing standards manual mechanical engineering branch goddard space flight center greenbelt, maryland august 1994 n a t i o n a l i a e r o n a u t i c s.

Source: forums.autodesk.com
Hvac project drawings for commercial building. These files includes air port, commercial building and elementary school. Samples of heating, ventilation, air conditioning (hvac) plans are created using conceptdraw diagram diagramming and vector drawing software enhanced with hvac plans solution from conceptdraw solution park. Revit mep sample project files Download free mep calculation excel sheets, autocad drawings, and training courses for.