Type Of Electrical Plan 27++ Images Result
Type Of Electrical Plan. Electrical plans in commercial spaces are generally drawn at the same scale as the floor plans. The locations and type of electrical device required on an architectural plan are referred to as
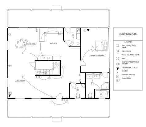
Each of them is a professional looking home electrical plan. Electrical plans consist of scaled delineations arranged to depict circuits and electrical equipment installation, and are supplemented by diagrams and specifications. The electrical plans shall depict:
buick 350 hei wiring diagram the game fuse box mack fuse box diagram 2003 le 613 1999 f250 radio wiring diagram
Types of Electrical Drawing and Diagrams Electrical
Electrical plans consist of scaled delineations arranged to depict circuits and electrical equipment installation, and are supplemented by diagrams and specifications. Introduction the design process understanding the project scope. Electrical plans consist of scaled delineations arranged to depict circuits and electrical equipment installation, and are supplemented by diagrams and specifications. (1) a plot plan showing the building's location and outside electrical wiring.

Source: pinterest.com
Single line diagrams can be used to determine the power system problems it. • recognize the symbols used in electrical plan design. Introduction the design process understanding the project scope. In short, an electrical plan describes the position of all the electrical apparatus. Electrical plan examples residential electrical plan.

Source: electricaltechnology.org
A fixed electricity plan is exactly what it sounds like. Single line diagrams can be used to determine the power system problems it. Various types of equipment or devices being placed in the building, which receive electrical power for functioning. The following paragraphs provide a description of the power plan and the corresponding electrical load calculations. The terms and rates.

Source: cadbull.com
Electrical systems (electronics assembly connection. A diagram as shown in figure 5 is an important element of the electrical power plan. Many architectural features and other systems are left out so that the electrical plan can be easily read. A = type mcp = motor circuit protector tm = thermal magnetic ss = solid state b = frame size (manufacturer.

Source: electrical-engineering-portal.com
Use the electric and telecom plans. Each of them is a professional looking home electrical plan. This is the electrical kitchen plan template, as we can see how the electric design is done by. • recognize the symbols used in electrical plan design. It is also known as one line diagram which is mostly used in an industrial power system.

Source: pinterest.com
Single line diagrams can be used to determine the power system problems it. Defining parts of the electrical plan Introduction the design process understanding the project scope. Complete electrical plan of a two level residence with all the details, electrical installations of light fixtures, outlets, calculations and electrical diagrams and panels for each level, plan in dwg autocad format. While.
Source: cadbull.com
A complete set of working drawings for the average electrical system in large projects usually consists of: Architectural plan sets when applying for a building permit or planning case, applicants will need to provide all relevant architectural plan sets/drawings. (1) a plot plan showing the building's location and outside electrical wiring. A diagram as shown in figure 5 is an.

Source: cadbull.com
While the types of plan sets vary based on a project’s scope of work, the most common types include architectural, structural, mechanical, electrical, plumbing, and civil. The samples you see on this page were created in conceptdraw diagram using the tools of electric and telecom plans solution from the building plans area. It is a type of technical drawing that.

Source: cmhsoftware.com
A complete set of working drawings for the average electrical system in large projects usually consists of: In general, to install the electrical appliances and machines for any home or industry initially a plan is made by engineer. • recognize the symbols used in electrical plan design. Each of them is a professional looking home electrical plan. Many architectural features.

Source: pinterest.com
• recognize the symbols used in electrical plan design. In large commercial projects, a separate electrical/power plan with a legend specifies outlets and circuitry. Electrical plan is “a preplan of electrical design on a paper before the physical installation of electrical appliances and machines in real time ”. This is the electrical kitchen plan template, as we can see how.

Source: andivi.com
The samples you see on this page were created in conceptdraw diagram using the tools of electric and telecom plans solution from the building plans area. The electrical plan is sometimes called as electrical drawing or wiring diagram. Introduction the design process understanding the project scope. The following paragraphs provide a description of the power plan and the corresponding electrical.

Source: cadbull.com
Single line diagrams can be used to determine the power system problems it. Architectural plan sets when applying for a building permit or planning case, applicants will need to provide all relevant architectural plan sets/drawings. Basics 8 aov elementary & block diagram : This is a template from edrawmax in this template, and we can see how the electric wires..

Source: cadbull.com
A = type mcp = motor circuit protector tm = thermal magnetic ss = solid state b = frame size (manufacturer to determine frame size unless indicated) d = trip setting (at = amp trip) (ac = mcp continuous rating) e = designation f = interrupting rating combination starter with control power transformer a = circuit breaker disconnect, type as.
Source: civiconcepts.com
In large commercial projects, a separate electrical/power plan with a legend specifies outlets and circuitry. A complete set of working drawings for the average electrical system in large projects usually consists of: Electrical plan, including general and specialized loads, lighting systems, and distribution systems. The following paragraphs provide a description of the power plan and the corresponding electrical load calculations..

Source: cadbull.com
In large commercial projects, a separate electrical/power plan with a legend specifies outlets and circuitry. It consists of symbols and lines that showcase the engineer's electrical design to its clients. A diagram as shown in figure 5 is an important element of the electrical power plan. This is a template from edrawmax in this template, and we can see how.

Source: cadbull.com
(1) a plot plan showing the building's location and outside electrical wiring. The plan is often termed as electrical plan. A fixed electricity plan is exactly what it sounds like. The different types of plans are as follows: A = type mcp = motor circuit protector tm = thermal magnetic ss = solid state b = frame size (manufacturer to.

Source: happho.com
The electrical plan is sometimes called as electrical drawing or wiring diagram. It is a type of technical drawing that delivers visual representation and describes circuits and electrical systems. Various types of equipment or devices being placed in the building, which receive electrical power for functioning. Electrical plan, including general and specialized loads, lighting systems, and distribution systems. Electrical plans.

Source: cadbull.com
The plan is often termed as electrical plan. The terms and rates inside will not change for the duration of your contract. Electrical systems (electronics assembly connection. In general, to install the electrical appliances and machines for any home or industry initially a plan is made by engineer. A complete set of working drawings for the average electrical system in.
Source: istockphoto.com
Each of them is a professional looking home electrical plan. Electrical plan examples residential electrical plan. Defining parts of the electrical plan It is a type of technical drawing that delivers visual representation and describes circuits and electrical systems. The electrical plans shall depict:

Source: cadbull.com
It is also known as one line diagram which is mostly used in an industrial power system. Electrical plans in commercial spaces are generally drawn at the same scale as the floor plans. Introduction the design process understanding the project scope. A fixed electricity plan is exactly what it sounds like. Use the electric and telecom plans.

Source: cadbull.com
The different types of plans are as follows: In general, to install the electrical appliances and machines for any home or industry initially a plan is made by engineer. While the types of plan sets vary based on a project’s scope of work, the most common types include architectural, structural, mechanical, electrical, plumbing, and civil. Architectural plan sets when applying.